• 公众号
  • 进家长群

学校开放日

    新闻公告

    领科开设佘山新校区|最新动态速递

    发布日期:2025-08-06 内容来源于:网络

    近年来,上海的国际学校动作不断,扩招、扩建、新增课程,市场一片欣欣向荣。
    其中,沪上“牛剑收割机”领科开设佘山新校区的消息,从7年传出之始,就颇受瞩目。
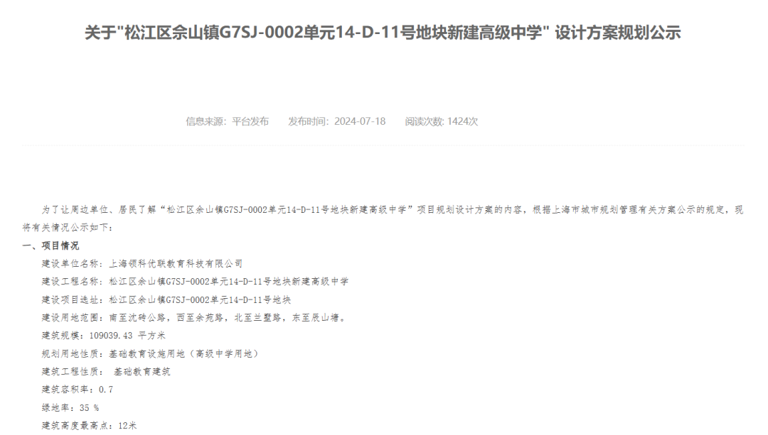
    根据上海市松江区人民政府发布的《关于"松江区佘山镇G7SJ-0002单元14-D-11号地块新建高级中学" 设计方案规划公示》显示,该项目建筑规模约10.9万平方米。
     
    图片

    图 | 上海市松江区人民政府

    近日,有网友在网上晒图,领科的佘山新校区终于开始动工了!
    图片
    图 | 小红书
    众所周知,目前领科在上海投入使用的只有松江区九亭镇涞亭南路559号这一个校区,建于2005年,使用至今已经有20年了。
    图片
    领科现有的松江九亭校区 图 |  探校实拍
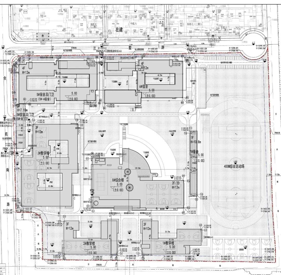
    而领科佘山新校区位于辰山植物园附近,根据松江区政府公布的项目公示图,新校区计划建设3栋教学楼、2栋宿舍楼和1栋综合楼;400米综合运动场,包含跑道、足球场等体育场所,并附有看台。
    图片

    图 | 上海市松江区人民政府

    另外,领科新校区计划有248个机动车停车位,其中教师停车位178个,接送停车位65个,货车停车位1个,以及校车停车位4个。
    图片
    图 | 佘山政府官网
     
    新校区具体的工期和建成时间还犹未可知,但是根据项目公示图和学校规模,预计校区将于27-28年建成。
    那么,新校区建成后,学校将如何分配学生和布局呢?
     
    作为一所老牌国际高中,领科开设A-Level、IBDP、SABIS三大国际课程。年4月,领科成功获得高中办学资质,办学规模为3个年级,每个年级4个班,每个班35人,办学地址为领科的松江区九亭校区。

     

    图片
    图 | 上海松江区教育局官网
     
    有网友猜测,领科佘山校区建成后,领科很有可能会变成一个校区体制内一个校区体制外的模式,而而体制外高中的学生都会前往佘山新校区入读。
     
    图片
    图 | 小红书
    那新校区建成后,领科会不会扩招呢?

    根据此前上海市规划局网站公示信息,领科佘山新校区将是一所寄宿制学校,而项目计划规模为75班共3000人

    图片

    图 | 上海市规划局

    由此看来,领科很有可能会扩招,但是扩招≠放水,作为头部学校,领科对于生源质量的把控还是很严格的。

    领科25年秋招考情速递
    ?笔试科目:
    ??英语(80min/写作要炫修辞手法)
    ??数学(体制内难题+竞赛思维)
    ??科学思维(物化生+逻辑推理)

    ?面试真题:
    ??中文小组辩论:TikTok难民涌入小红书/青少年网络监管
    ??英文观点Battle:科技让人更孤独or更紧密?

    ??划重点!
    ??英语:狂刷高阶词汇+议论文框架
    ??数学:重点攻圆/函数/几何难题
    ??面试:关注科技成瘾/新媒体热点

    免责声明:
    1. 为方便家长更好的阅读和理解,该页面关于学校信息描述可能采用了学校视角,描述中涉及的“我”、“我们”、“我校”等第一人称指代学校本身,并不代表远播公司或其观点;
    2. 此网页内容目的在于提供信息参考,来源于网络公开内容,具体以学校官方发布为主;
    3. 若素材有侵权或其他问题,请联系我们。

    家长有问必答
    学校咨询
    为了更好地为您提供选校咨询、生涯规划、留学、背提、研学服务,我们将收集您的上述信息。若您同意且理解,上述信息将用于本公司为您进行后期回访,从而定制更为贴心的服务。此外,提醒您特别注意,本页面下的学校信息为公开渠道获取并在此展示,并不代表我们与此学校存在任何合作关系。关于您的个人信息处理规则详见 《用户隐私政策》
    北京站 2026.05.17 北京悠唐皇冠假日酒店六层大宴会厅(北京市朝阳区三丰北里3号) 预约报名
    苏州站 2026.05.17 苏州凯悦酒店1楼大宴会厅(苏州市苏州工业园区华池街88号 ) 预约报名
    临沂站 2026.05.23 临沂沂河宾馆四号楼2号3号厅(临沂市兰山区书圣路2号) 预约报名
    南京站 2026.05.23 南京希尔顿酒店•3楼颂庭1/2厅(南京市建邺区江东中路 100 号) 预约报名
    上海站 2026.05.23 上海中星铂尔曼大酒店3楼宴会厅(上海徐汇区浦北路1号) 预约报名
    广州站 2026.05.23 富力丽思卡尔顿酒店2楼宴会厅(天河区珠江新城兴安路3号) 预约报名
    东莞站 2026.05.30 富力万达文华酒店2楼会议厅(东城区东纵大道208号) 预约报名
    合肥站 2026.06.06 合肥君悦酒店3F小宴会厅(合肥政务区潜山路111号) 预约报名
    珠海站 2026.06.06 珠海仁恒洲际酒店3楼宴会厅(香洲区情侣南路1号) 预约报名
    海口站 2026.06.13 海口朗廷酒店5楼宴会厅(海口市龙华区滨海大道77号) 预约报名
    杭州站 2026.09.12 待定 预约报名
    上海站 2026.10.17 上海浦东嘉里大酒店3F(上海浦东新区花木路1388号) 预约报名

    预约探校
    学校咨询
    已阅读并同意 《用户隐私政策》
    为了更好地为您提供选校咨询、生涯规划、留学、背提、研学服务,我们将收集您的上述信息。若您同意且理解,上述信息将用于本公司为您进行后期回访,从而定制更为贴心的服务。此外,提醒您特别注意,本页面下的学校信息为公开渠道获取并在此展示,并不代表我们与此学校存在任何合作关系。关于您的个人信息处理规则详见 《用户隐私政策》
    预约探校
    预约咨询
    已阅读并同意 《用户隐私政策》
    为了更好地为您提供选校咨询、生涯规划、留学、背提、移民、研学服务,我们将收集您的上述信息。若您同意且理解,上述信息将用于本公司为您进行后期回访,从而定制更为贴心的服务。关于您的个人信息处理规则详见 《用户隐私政策》